Komfortbad aus Abstellraum
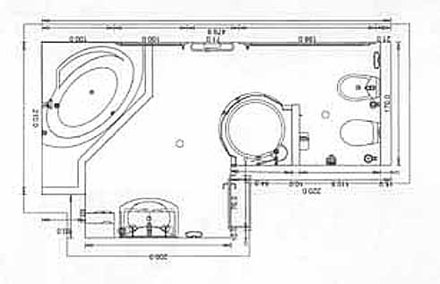
In einem Reihenhaus in Duisburg entstand nach intensiver Planung aus einem ehemaligen Abstellraum und einem kleinen Duschbad dieses durchgestylte Komfortbad, das kaum noch Wünsche offen lässt. "Die knapp 4 Quadratmeter Grundfläche in unserem Reihenhaus aus den 60er Jahren waren uns einfach zu wenig" erklärte die Familie aus Duisburg auf die Frage nach den Gründen der umfangreichen Badmodernisierung. So stand bereits kurz nach dem Kauf des Hauses fest, dass der nicht unbedingt erforderliche Nebenraum einem komfortablen Bad "geopfert" und der neu entstehende Raum mir geräumiger Wanne, einer Dusche, sowie WC und Bidet ausgestattet werden sollte. Schnell war auch klar, dass man vorher mit einer Computer-Badplanung die in Frage kommenden Produkte maßgenau am PC einpassen wollte um den hinzu gewonnenen Platz optimal nutzen zu können. Neue Ideen taten sich auf, denn zusammen mit dem Badplaner Manfred Welzel wurde eine Variante gewählt, die schnell realisierbar erschien und großen Gefallen fand. Also ging man ans Werk... riss Zwischenwände heraus, musste eine durchgehende Lüftungsleitung verlegen und beendete nach nur 3 Wochen (!) den kompletten Umbau. Die Badplanung von Manfred Welzel wurde maßgenau übernommen. WC und Bidet verschwinden hinter der Abmauerung die gleichzeitig als Rückwand der komfortablen Runddusche dient. Die eingesetzten Produkte können sich nun in einem stimmigen Gesamtbild sehen lassen: WC, Bidet und Waschtisch von Kramag, Wanne und Duschwanne von Kaldewei, Duschabtrennung von Sprinz, Badmöbel von Sanipa, Heizkörper von Zehnder und die Edelstahlarmaturen und -accessoires von Axor/Hansgrohe.
![]()
![]()
![]()
![]()
![]()
![]()
![]()
![]()
![]()
![]()
![]()
![]()
Copyright © 2008 Bad-Design Manfred Welzel